Fraud Blocker
Sold STC
£750,000

Churchdale, Aldershot Road, Church Crookham

3
2
3

Property Summary

Churchdale is an exclusive collection of just four beautifully designed detached family homes in the heart of Church Crookham. Offering three-storey layouts, each home features three spacious bedrooms, stylish open-plan living, premium finishes, and private gardens. With three dedicated parking spaces per plot and a peaceful yet well-connected village location, Churchdale combines comfort, elegance, and practicality for modern family living.
  • Make Enquiry
  • Floorplan
  • View Brochure
  • View EPC
  • View EPC
  • Utilities & More

Full Details

An Exclusive Development of Four Distinctive Detached Family Homes.

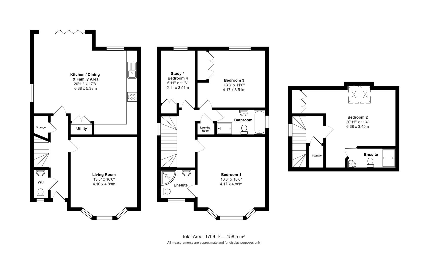
Welcome to Churchdale, a private development of just four exceptional detached family homes designed with comfort, functionality, and refined finishes in mind. The collection comprises four three-storey homes offering three bedrooms plus a large study. Each home benefits from three private parking spaces, with a combination of open and covered parking, including single or double car barns depending on the plot.

Every property has been thoughtfully planned to support modern family life. The ground floor features a striking open-plan kitchen, dining, and family room—perfect for entertaining or everyday living—while a separate living room, complete with an elegant bay window, provides a quieter retreat. A convenient ground floor WC is also included. The interiors are elevated by herringbone flooring throughout the ground level and underfloor heating, creating both style and comfort.

Upstairs on the first floor, each home presents three generously sized bedrooms, all with built-in storage. One of the bedrooms benefits from a private en-suite, while the others are served by a beautifully appointed family bathroom. A particularly practical feature is the discreet laundry chute, offering direct access to a utility cupboard located within the kitchen, which houses a stacked washer and dryer.

The second floor offers a luxurious main bedroom with its own en-suite and ample space that could alternatively serve as a substantial home office or fourth bedroom. These upper levels are filled with natural light, enhanced by Velux windows and the double-glazed sash windows featured throughout the rest of the home.

The kitchens are fitted with premium Benchmark branded units, complemented by white marble splashbacks with gold veining for a sophisticated touch. High-specification appliances are integrated throughout, including a double oven, built-in dishwasher, full-size fridge, and separate base level freezer. A pantry adds further practicality and storage.

Bifold doors from rear of the property onto private gardens, which are finished with a combination of lawn, patio, and thoughtfully planted flower beds. Each garden includes a 5’ x 4’ shed for additional storage and four dedicated bike racks, supporting an active and organised lifestyle.

Plot One benefits from a double car barn, while Plots Three and Four are designed with single car barns, whilst Plots 2 await subject to final decision. All homes include three parking spaces in total, ensuring convenience for families and guests alike.

With its high-spec finish, spacious layout, and attention to every detail, Churchdale offers a rare opportunity to secure a stylish, energy-efficient home in a well-connected yet peaceful location. Early enquiries are highly recommended.

Church Crookham is a highly sought-after village located in the Hart district of Hampshire, South East England. Nestled just south of Fleet, it offers a perfect blend of semi-rural charm and modern convenience, making it popular with families, commuters, and retirees alike. The village boasts a strong sense of community, with a selection of local shops, pubs, and well-rated schools. It is surrounded by green spaces and woodland, including Velmead Common, Basingbourne Park, and Tweseldown Racecourse, providing plenty of opportunities for walking, cycling, and outdoor recreation. Despite its peaceful atmosphere, Church Crookham is well connected. The nearby Fleet railway station offers fast and frequent services to London Waterloo (around 40–50 minutes), and the M3 motorway is easily accessible, providing excellent road links to London, Southampton, and beyond.

Disclaimer: The images are of Plot 3 the showhome

Like what you see?

Make an enquiry today! Just enter your details and we’ll get back to you right away.

Request A Valuation

Looking for some expert advice on the value of your home?
Enter your details below and a member of our team will be in touch

Book Valuation