Fraud Blocker
For Sale
£499,950 Offers Over

Pierrefondes Avenue, Farnborough

4
1
1

Property Summary

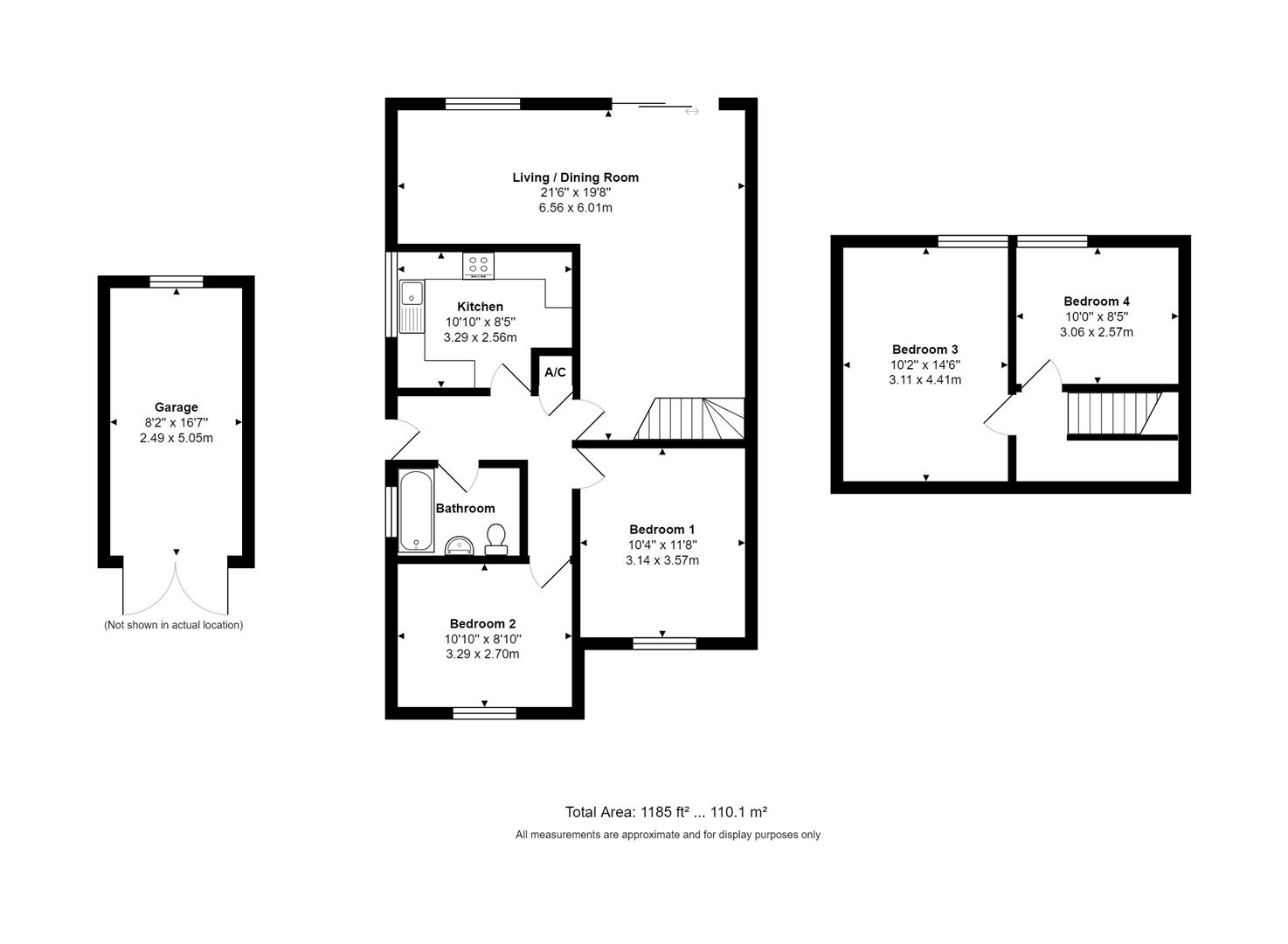
A beautifully presented four-bedroom semi-detached chalet bungalow on the sought-after Pierrefondes Avenue, Farnborough. Offering spacious and versatile accommodation with a generous living/dining room, modern kitchen, and flexible bedroom layout across two floors. Externally the property benefits from a detached garage, driveway parking for several vehicles, and a 90ft private rear garden with direct access to Queen Elizabeth Park. Ideally located close to local amenities, excellent schools, and mainline transport links.
  • Make Enquiry
  • Floorplan
  • View Brochure
  • Property Walk Through
  • Utilities & More

Full Details

Nestled on the highly sought-after Pierrefondes Avenue in Farnborough, this beautifully presented four-bedroom semi-detached chalet bungalow offers spacious and versatile accommodation, ideally suited to modern family living.

The ground floor features a welcoming entrance hall leading to a generous living/dining room, perfect for entertaining and everyday family life, with sliding doors opening directly onto the patio and rear garden. The kitchen is well-appointed with ample storage and preparation space, while two well-proportioned bedrooms, including the principal bedroom, are served by a modern family bathroom.

On the first floor, the property boasts two further bedrooms, including a particularly spacious bedroom three. Bedroom four offers flexibility, making an ideal child’s room, guest bedroom, or home office. Additional eaves storage provides valuable practicality. A key advantage of this property is the potential to transform the upstairs space into a stylish en-suite bathroom, adding valuable practicality and convenience.

Externally, the property benefits from a detached garage, excellent driveway parking for 4-5 vehicles, and a delightful rear garden extending approximately 90 feet, creating a perfect setting for outdoor dining, play, and relaxation. A real advantage is the rear gate providing direct access onto Queen Elizabeth Park and Play Area, ideal for families and those who enjoy green open spaces.

Pierrefondes Avenue is a highly regarded residential road, popular with families and commuters alike. Farnborough offers a wide range of local amenities including shops, supermarkets, and leisure facilities, while Farnborough town centre provides further retail and dining options. For commuters, Farnborough main station is a short walk away providing fast and frequent services into London Waterloo, Reading, and Guildford. Excellent road links are available via the A331, M3, and A31, offering convenient access across Surrey, Hampshire, and beyond.

Like what you see?

Make an enquiry today! Just enter your details and we’ll get back to you right away.

Request A Valuation

Looking for some expert advice on the value of your home?
Enter your details below and a member of our team will be in touch

Book Valuation