Fraud Blocker
For Sale
£385,000

Sandy Hill Road, Farnham

4
1
1

Property Summary

Offered to the market with no onward chain complications is this beautifully renovated four-bedroom family home overlooking a green and within walking distance of Farnham Park and Caesar’s Camp. Finished to a high specification with a stunning kitchen, stylish bathroom, and new carpets throughout. Offering bright, spacious living areas, a private rear patio, and a peaceful position close to Farnham town centre, mainline station, and outstanding local schools including South Farnham and Weydon.
  • Make Enquiry
  • Floorplan
  • View Brochure
  • View EPC
  • Utilities & More

Full Details

Nestled in a peaceful setting overlooking a green and within walking distance of Farnham Park and Caesar’s Camp, this stunning four-bedroom family home has been beautifully renovated throughout, offering contemporary style and comfort within easy reach of Farnham’s vibrant town centre. This lovely home is offered to the market with no onward chain.

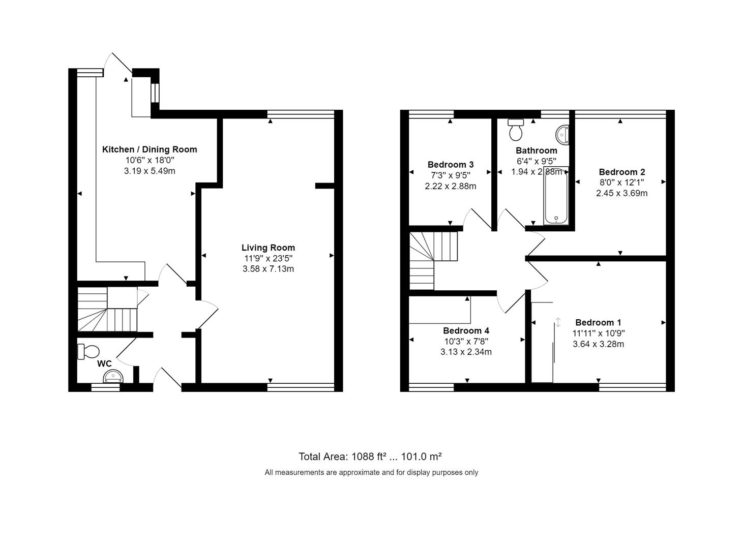
Thoughtfully updated to a high specification, the property features a superb open-plan kitchen and dining area, fitted with sleek modern cabinetry and ample space for appliances — the perfect setting for family meals or entertaining. The dual-aspect living room is bright and inviting, providing a wonderful place to relax, while a convenient cloakroom and useful understairs storage complete the ground floor.

Upstairs, there are four well-proportioned bedrooms, each freshly decorated and complemented by a brand-new family bathroom finished with stylish fittings and a timeless design. The principal bedroom further benefits from built-in sliding wardrobes, adding both functionality and elegance. The home has been redecorated throughout, with new carpets and flooring enhancing its sense of freshness and refinement.

Outside, the property enjoys a neatly landscaped front garden and a private rear patio, perfect for outdoor dining or relaxing in the sunshine. Its enviable position fronting onto a green enhances the sense of space and tranquillity.

Eton Place is a quiet residential area on the outskirts of Farnham, a historic market town celebrated for its Georgian charm, independent shops, and vibrant café culture. The property is ideally located for access to Farnham town centre, the mainline station (with regular services to London Waterloo in under an hour), and major routes including the A31 and A3.

Families are exceptionally well catered for, with a number of Outstanding-rated schools nearby, including Weydon School, South Farnham School, Highfield South Farnham School, and St Polycarp’s Catholic Primary School.

Perfectly positioned for families, commuters, and professionals alike, 179 Eton Place combines modern living with a peaceful, community-focused setting — a home that truly offers the best of Farnham life.

Like what you see?

Make an enquiry today! Just enter your details and we’ll get back to you right away.

Request A Valuation

Looking for some expert advice on the value of your home?
Enter your details below and a member of our team will be in touch

Book Valuation