Fraud Blocker
Sold STC
£220,000

Thornfield Green, Blackwater

2
1
1

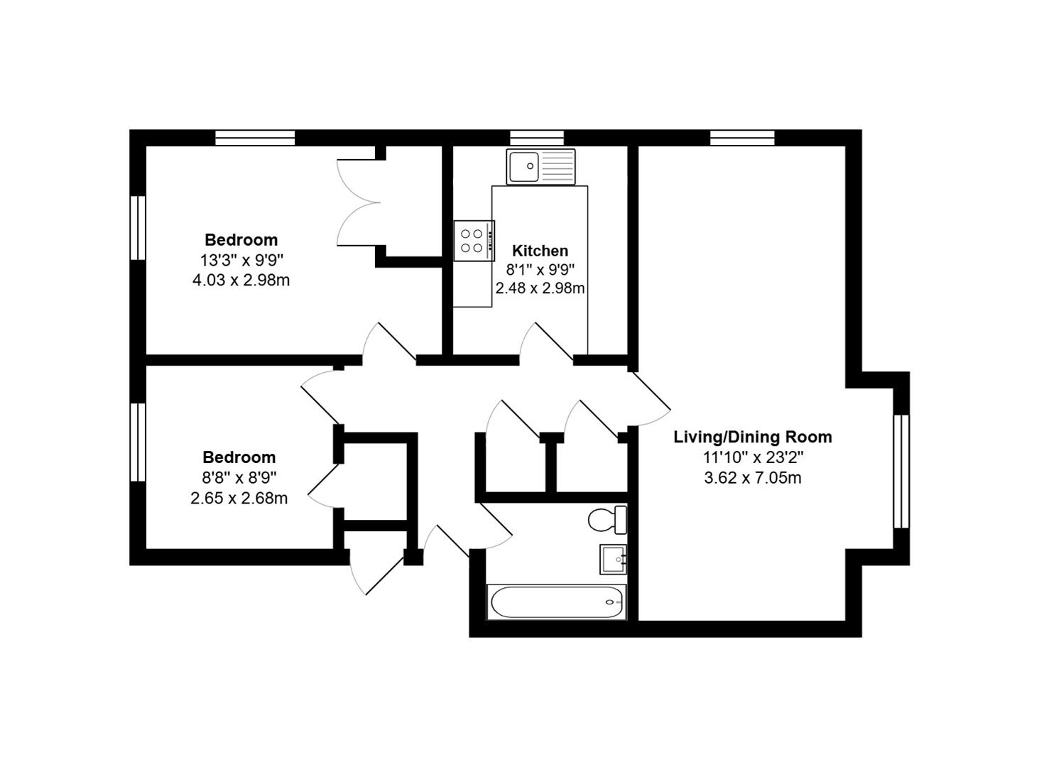
Property Summary

A bright and spacious two-bedroom top-floor apartment, well presented throughout and featuring allocated parking plus access to a visitor car park. Offered to the market with no onward chain!
  • Make Enquiry
  • Floorplan
  • View Brochure
  • View EPC

Full Details

Location
The property is conveniently located close to the centre of Blackwater village, within walking distance of local shops, Blackwater Station (with services to Reading and Gatwick), and the beautiful Blackwater Valley Nature Reserve. The nearby A30 provides quick access to the M3 and surrounding road networks. For shopping, The Meadows is close by and offers excellent facilities, including M&S, Tesco Extra, and Next. Camberley, just a mile away, provides more extensive shopping and recreational options, making this location ideal for both convenience and leisure.

Description
This spacious top-floor apartment is offered to the market with no onward chain and benefits from a 959-year lease. It features two double bedrooms, each with fitted wardrobes providing convenient storage. The well-appointed kitchen includes an extensive range of cupboards and drawers, offering ample space for all essentials. The generous living/dining room is bright and airy, creating an ideal setting for relaxation and entertaining. A family bathroom completes the accommodation. There is also a large loft space.

Outside
Externally, the property benefits from allocated parking, as well as a visitor car park and ample additional parking available on the nearby road. Residents can also enjoy well-maintained communal gardens, offering a pleasant outdoor space to relax and unwind.

Like what you see?

Make an enquiry today! Just enter your details and we’ll get back to you right away.

Request A Valuation

Looking for some expert advice on the value of your home?
Enter your details below and a member of our team will be in touch

Book Valuation