Fraud Blocker
For Sale
£155,000

Yorktown Road, College Town

1
1
1

Property Summary

A well-presented one-bedroom top-floor apartment with lift access and a Juliet balcony, conveniently located within walking distance of local shops, and offered to the market with no onward chain!
  • Make Enquiry
  • Floorplan
  • View Brochure
  • View EPC

Full Details

Description
Offered to the market with no onward chain, this well-presented one-bedroom top-floor retirement apartment is conveniently situated within walking distance of local shops.

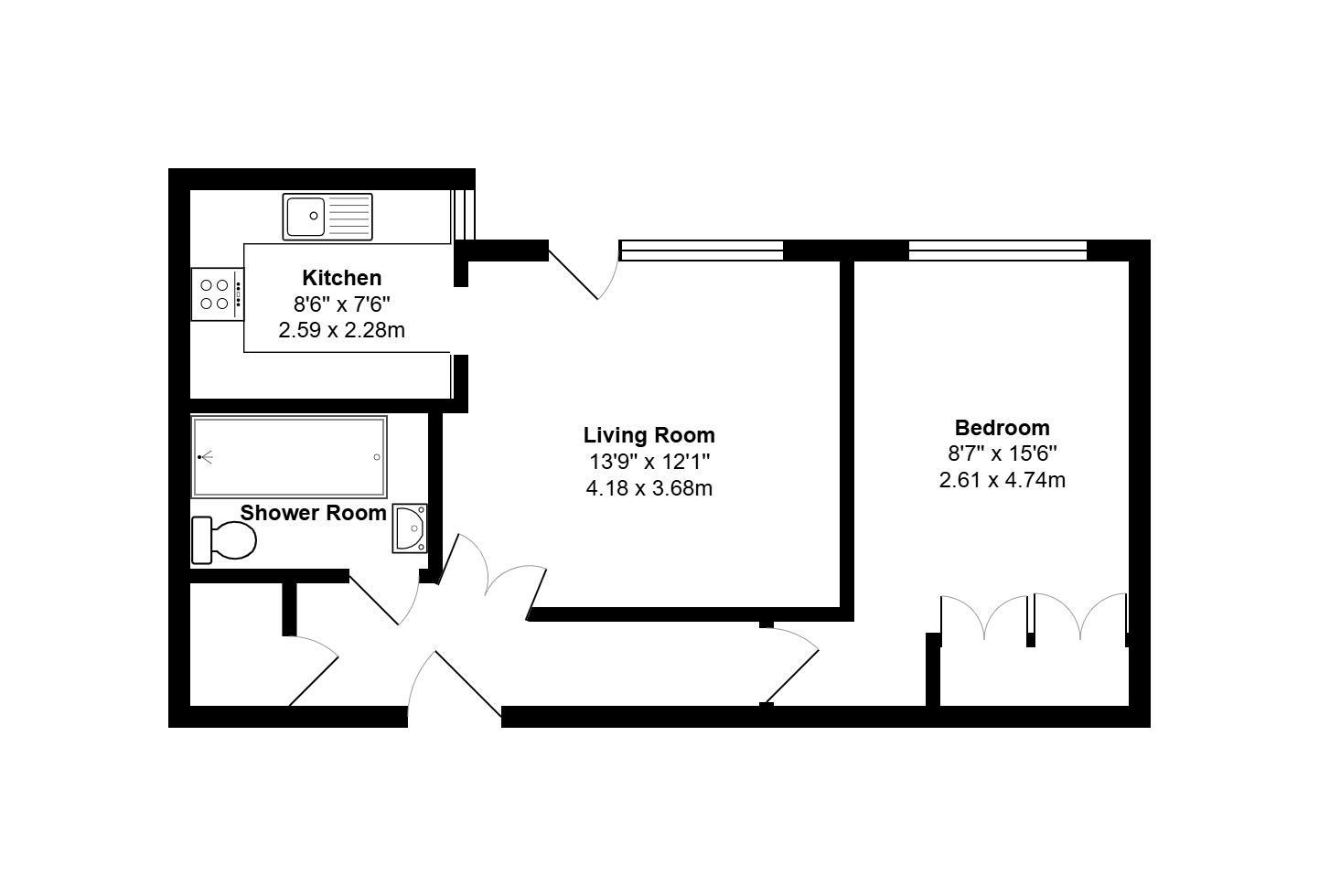
The accommodation comprises a spacious entrance hall with a large storage cupboard, leading to a bright living room featuring a Juliet balcony and an archway to a larger-than-average kitchen fitted with an oven and hob. The property also benefits from a generous shower room and a double bedroom with built-in wardrobes.

Location
Wyatt Court was constructed by McCarthy & Stone (Developments) Ltd and comprises 32 properties arranged over 3 floors each served by lift. The House Manager can be contacted from various points within each property in the case of an emergency. For periods when the House Manager is off duty there is a 24 hour emergency Careline response system. Each property comprises an entrance hall, lounge, kitchen, one or two bedrooms and bathroom. It is a condition of purchase that residents be over the age of 60 years, or in the event of a couple, one must be of the age of 60 years and the other 55 years.

Like what you see?

Make an enquiry today! Just enter your details and we’ll get back to you right away.

Request A Valuation

Looking for some expert advice on the value of your home?
Enter your details below and a member of our team will be in touch

Book Valuation