Fraud Blocker
For Sale
£170,000

Hammond Way, Yateley

1
1
1

Property Summary

This first floor, one bedroom Assisted Living apartment is set in the heart of Hampshire Lakes Village, close to all the main facilities.

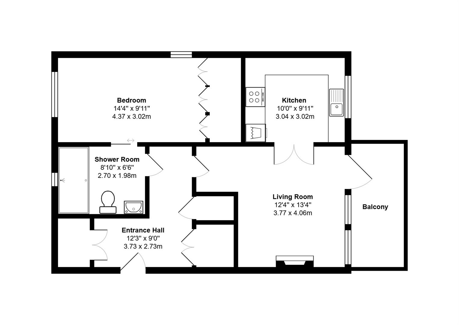
With access by either lift or stairs, the apartment comprises a spacious entrance hallway with storage cupboard leading to a light and bright living/dining room. There's a stylish modern kitchen with built-in appliances, plus a double bedroom with a good range of fitted wardrobes and an ensuite shower room. This apartment is available with an Assisted Living package, which includes one meal a day in the bistro, laundry and cleaning weekly and all utility bills. Alternatively, it can be taken with a Retirement Living package, which consists of one hours' cleaning per week.

Anchor Assisted Living offers a lifestyle alternative for independently minded older people by providing the privacy of their own self-contained apartment, whilst having a wide range of hotel type services as well as being able to call upon our on-site professional care and support team. At Hampshire Lakes there are 15 one-bedroom and 2 two-bedroom Assisted Living Apartments with an en-suite bathroom, a sitting room and kitchenette. They are located close to the central facilities and personal care services and provide the perfect solution for those who seek care services whilst maintaining a real feeling of independence. The apartment comes with a range of services included as part of a package. These packages also include access to all facilities and services covered under the service charge. You can choose to top up your packages, thus providing you with flexible options that can be adapted to meet your changing needs and/or requirements.
  • Make Enquiry
  • Floorplan
  • View Brochure
  • View EPC

Full Details

Life at Hampshire Lakes offers the best of luxury retirement living combined with an independent lifestyle designed around you, creating a unique experience. A state-of-the-art wellness centre and spa offers a luxurious swimming pool, whirlpool bath, steam room, sauna, and fully equipped gymnasium. Nestled in the village centre we also have Cotton's deli and the restaurant - both vibrant spaces where you can relax and entertain.

We believe in promoting independence with dignity, whilst at the same time striving to maintain and improve your quality of life. We understand that life changes as you get older. There comes a time when some extra assistance may be required to help complete those day to day tasks which were once dealt with more easily. The village offers a comprehensive range of housekeeping and personal care services at various hourly rates through our registered homecare service and housekeeping team. This is managed through separate contracts with individual residents.

Anchor Assisted Living offers a lifestyle alternative for independently minded older people by providing the privacy of their own self-contained apartment, whilst having a wide range of hotel type services as well as being able to call upon our on-site professional care and support team. At Hampshire Lakes there are 14 one-bedroom and 2 two-bedroom Assisted Living Apartments with an ensuite bathroom, a sitting room and kitchenette. They are located close to the central facilities and personal care services and provide the perfect solution for those who seek care services whilst maintaining a real feeling of independence. These apartments come with a range of services included as part of a package, which includes laundry, utility bills, cleaning and one meal a day. The apartments also come with Anchorcall installed - our in-house 24-hour manned residents' support service.

All residents pay a contribution to the running costs of facilities, support services and maintenance of the building and grounds which is known as the 'service charge'. The deferred sinking fund contribution goes towards a fund which we build up over time to meet the cost of major repairs and refurbishment works which are not covered by the monthly service charge. The contribution is payable on resale.


Key Facts

Lease: 125 years from 2015 (approx. 115 years remaining)

Service Charge: £793.69 pcm from 1st April 2025, to be reviewed annually and updated from 1st April each year

Ground Rent: £500 per year, to be reviewed every 25 years

Council Tax band: C

Sinking Fund: 4.5% on sale

Age Criteria: Sole occupiers or at least one partner in a couple must be 65 or over

Assisted Living package cost (if applicable): £1,029.94 per month (single) or £1,548.63 per month (couples)

Alternative Retirement Living package cost (for 1 hours' cleaning per week): £23.10 per week

Like what you see?

Make an enquiry today! Just enter your details and we’ll get back to you right away.

Request A Valuation

Looking for some expert advice on the value of your home?
Enter your details below and a member of our team will be in touch

Book Valuation