Fraud Blocker
Sold STC
£425,000

Rosemary Lane, Blackwater, Camberley

3
2
1

Property Summary

A extended semi detached three bedroom family home home which also benefits from a integral garage and large corner plot garden.
  • Make Enquiry
  • Floorplan
  • View Brochure
  • View EPC

Full Details

Description
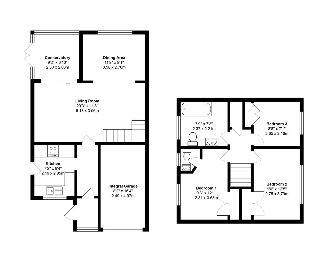
Offered to the market with no onward chain, this extended semi-detached family home provides spacious and versatile accommodation throughout. The ground floor features an entrance hall with access to the integral garage, a well-appointed kitchen, a generously sized living room with a separate dining area, and a conservatory overlooking the garden.

Upstairs, the property boasts three well-proportioned bedrooms and a modern four-piece family bathroom.

Externally, the home benefits from a large, secluded side garden, mainly laid to lawn and bordered by mature hedging and trees, offering excellent privacy.

Conveniently located close to local shops, amenities, and highly regarded schools, the property is also within easy reach of Blackwater railway station. Nearby Hawley Woods and Blackwater Nature Reserve provide beautiful outdoor spaces, while excellent road links ensure easy connectivity to surrounding areas.

Like what you see?

Make an enquiry today! Just enter your details and we’ll get back to you right away.

Request A Valuation

Looking for some expert advice on the value of your home?
Enter your details below and a member of our team will be in touch

Book Valuation