Fraud Blocker
Sold STC
£375,000 Guide Price

The Cloisters, Frimley, Camberley

4
1
1

Property Summary

Situated in a cul-de-sac convenient for Frimley High Street, this 3/4 bedroom townhouse offers generous accommodation over three floors and although requiring modernisation and redecoration throughout, the property would make an exciting project. No onward chain
  • Make Enquiry
  • Floorplan
  • View Brochure
  • View EPC

Full Details

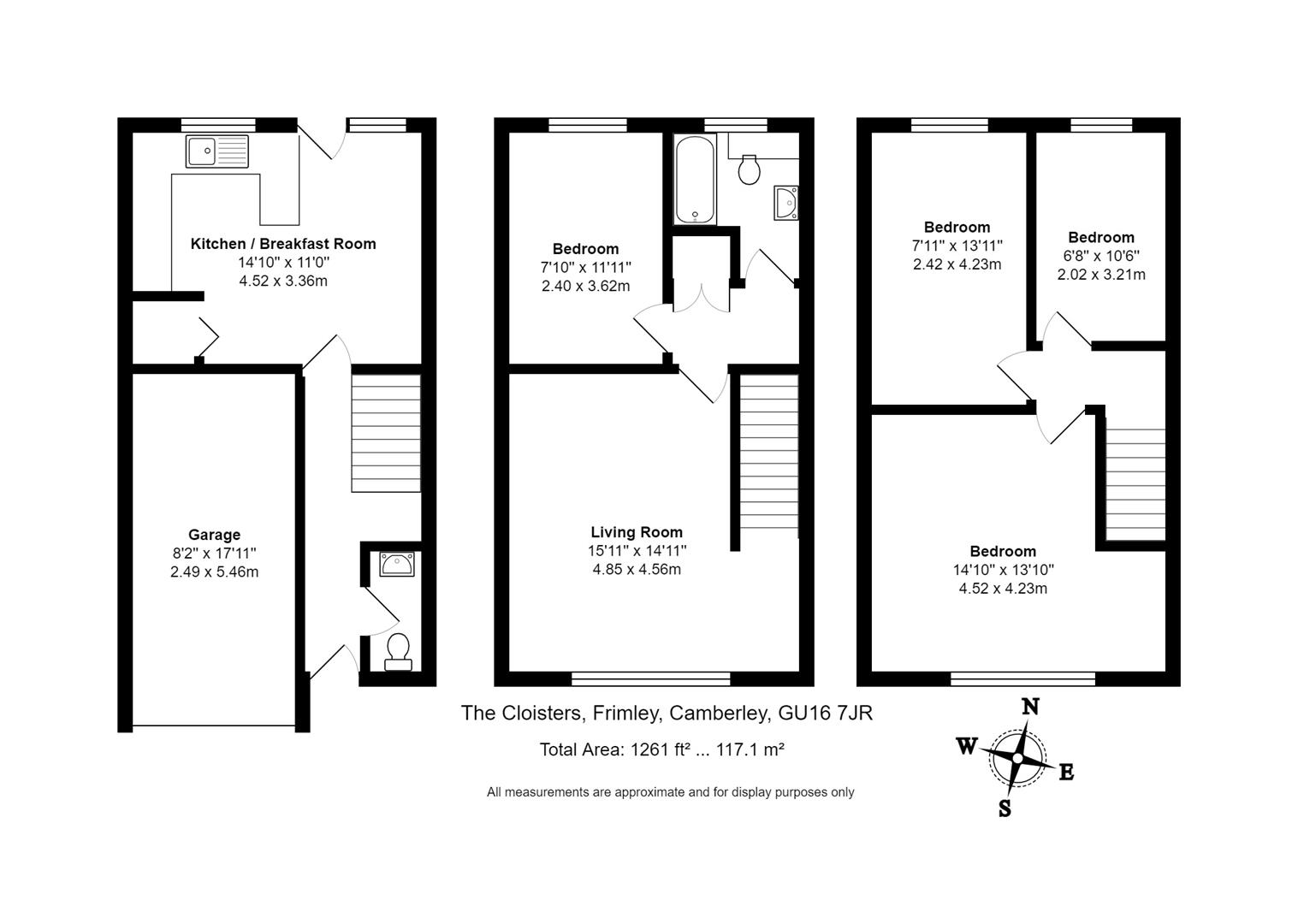
Accommodation
This 3 or 4 bedroom town house is approached by an entrance hall with a downstairs cloakroom and a good sized kitchen/breakfast room with a range of kitchen cabinets, a storage cupboard and French doors to the garden. On the first floor. the front aspect Living room is adjacent to a dining room or 4th bedroom as well as a bathroom. On the 2nd floor are 3 bedrooms.

Outside
The property is approached by a driveway for 2 cars and leads to the garage, with an electric charging point and a pathway to the front door. To the rear is a patio area leading to a secluded garden with raised decking extending to approximately 40ft and enclosed by timber fencing.

Location
Located in a cul-de-sac close to Frimley High and within easy reach of highly regarded schools & within close proximity of Frimley Park Hospital. Frimley High Street has a good selection of shops, restaurants and the station is minutes away. It benefits from excellent transport links, including the A30, M3 and is a short drive from Farnborough main station which serves London Waterloo in 38 minutes.

Like what you see?

Make an enquiry today! Just enter your details and we’ll get back to you right away.

Request A Valuation

Looking for some expert advice on the value of your home?
Enter your details below and a member of our team will be in touch

Book Valuation